Описание
Применение типовых проектных решений позволяет значительно сократить сроки и затраты при проектировании многокомпонентных систем пожаротушения.
О громный выбор компонентов для пенных установок пожаротушения (баки-дозаторы, узлы управления, запорная арматура и прочее), предлагаемый современным рынком, заметно осложняет выбор оборудования проектировщикам, которые вынуждены итерационно разбираться в технической документации производителей. Отдел закупки также тратит время на договорную работу с целым рядом поставщиков, которые не всегда готовы предложить подходящие для вашей компании условия поставок. Все это приводит к увеличению сроков проектирования, снижая рентабельность предприятия в целом, и в современном мире может обернуться потерей ряда клиентов – сроки сейчас решают если не все, то очень многое.
Оптимизировать процесс проектирования позволит применение в повседневной практике типовых проектных решений. В частности, узлов приготовления раствора пенообразователя (УПРП), разработку, поставку и техническое сопровождение которых осуществляет компания «ИПК Промо-Консалтинг».
Узел приготовления раствора пенообразователя – это комплекс, функциями которого являются хранение концентрата пенообразователя и подготовка его рабочего раствора с заданными физико-химическими характеристиками.
- СОКРАЩЕНИЕ СРОКОВ ПРОЕКТИРОВАНИЯ
Повысьте рентабельность своей работы – просто вставьте УПРП в проект. Мы уже подобрали и скомпоновали все необходимое оборудование и многократно протестировали техническое решение. - СНИЖЕНИЕ ЗАТРАТ НА ОБОРУДОВАНИЕ И СУБПОДРЯДНЫХ ПРОЕКТИРОВЩИКОВ
Сэкономьте на маржинальности закупаемого оборудования, размещая заказ у единого поставщика. А также не тратьте бюджет проекта на привлечение дополнительных ресурсов для проектирования – используйте готовое решение. - МИНИМИЗАЦИЯ РИСКОВ
Не рискуйте, компануя новое для вас оборудование! Проектирование УПРП выполнено нашими опытными инженерами, конструкция прошла испытание и имеет многолетний стаж применения. - ПАКЕТ УСЛУГ И СЕРВИСНОЕ ОБСЛУЖИВАНИЕ
Единый поставщик всех компонентов системы упрощает вам коммуникацию и обеспечивает логистику, шеф-монтаж, пусконаладку, гарантийное и постгарантийное обслуживание. - ГАРАНТИИ
В состав УПРП входит только сертифицированное для применения в РФ оборудование от производителей с мировым именем, что является дополнительной гарантией надежности поставляемого нами решения.
Назначение комплекса УПРП
В упрощенном виде УПРП представляет собой модуль, являющийся промежуточным звеном между магистральной линией стационарного водопровода, обеспечивающей необходимые величины расхода и рабочего давления, и пеногенерирующими устройствами (пенные пожарные стволы, пеногенераторы, различные оросители и т. п.), позволяющими получить пену требуемой кратности.
Основной задачей УПРП является хранение основного и резервного запаса пенообразователя, а также подготовка его рабочего раствора с заданными физико-химическими характеристиками: при получении управляющего сигнала осуществляется пропорциональное смешивание хранимого в УПРП объема пеноконцентрата с водой стационарного водопровода под действием давления последнего.
Таким образом, специалист проектной организации, располагая сведениями о пожарной опасности защищаемого объекта, а также информацией о моделях и количестве пенообразующих устройств и типе используемого пенообразователя, может выбрать подходящую по техническим параметрам модификацию УПРП, которая будет включена в проектную документацию в виде изделия без необходимости проведения анализа функционирования его составных частей как по отдельности, так и во взаимодействии
друг с другом.
Поставка УПРП сопровождается комплектом необходимой технической и разрешительной документации на составные части и комплектующие материалы. Применение УПРП при разработке проектных решений позволит существенно снизить их трудоемкость, повысить скорость их проведения, минимизировать технические ошибки, высвободить интеллектуальные ресурсы проектировщиков для решения прочих производственных задач.

Техническое описание
НАЗНАЧЕНИЕ
Узел приготовления раствора пенообразователя предназначен для хранения расчетного и резервного количества пенообразователя, и приготовления 3% или 6% рабочего раствора пенообразователя. Узел приготовления раствора пенообразователя (далее по тексту – УПРП) предназначен для применения его в составе автоматических и неавтоматических (стационарных) установок пенного пожаротушения, а также в составе роботизированных пожарных комплексов, где в качестве огнетушащего вещества используется водный раствор пенообразователя.
Существует версия УПРП, адаптированная к размещению данного узла в составе установок автоматического пожаротушения в блочно-контейнерном
исполнении (блок-контейнеры).
НОМЕНКЛАТУРА И ОБОЗНАЧЕНИЕ

Пример обозначения узла приготовления раствора пенообразователя на 2 направления тушения, c двумя бака-дозаторами объемом 3 м3 каждый и концентрацией пенообразователя в водном растворе 3%:
Узел ПРП 2-3-3
Пример обозначения узла приготовления раствора пенообразователя на 2 направления тушения, c двумя бака-дозаторами объемом 3 м3 каждый и концентрацией пенообразователя в водном растворе 3% в исполнении для блок-бокса:
Узел ПРП(б) 2-3-3
ОСНОВНЫЕ ТЕХНИЧЕСКИЕ ХАРАКТЕРИСТИКИ

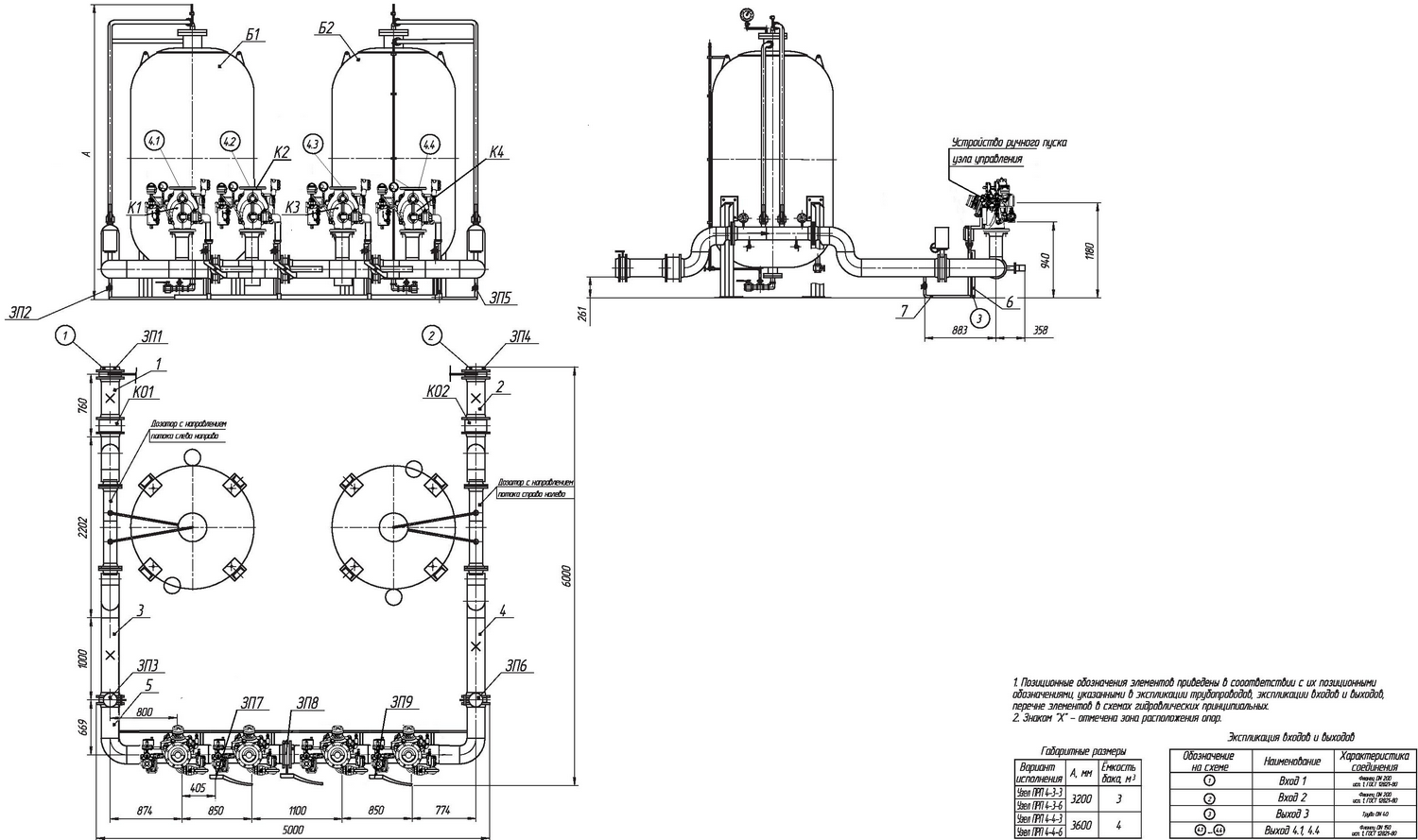
СОСТАВ УПРП
Узел приготовления раствора пенообразователя поставляется в виде комплекса изделий:
- баки-дозаторы;
- дренчерные узлы управления;
- затворы дисковые с электроприводом;
- затворы дисковые с ручным управлением;
- клапаны обратные;
- краны шаровые;
- трубопроводы и их детали;
- крепеж.
Примечание. Все обозначения позиций даны в соответствии с приложенными схемами и чертежами (стр. 8–16).
Баки-дозаторы [поз. Б1, Б2] предназначены для хранения и дозирования основного и резервного объемов пенообразователя и могут быть дополнительно оснащены следующими устройствами:
- ручной насос для дозаправки пенообразователя в комплекте со всасывающим шлангом;
- индикатор уровня для контроля уровня пенообразователя в баке;
- манометры для контроля давлений пенообразователя, воды и рабочего раствора;
- лестница доступа к горловине бака.
Узлы управления [поз. К1…К8] предназначены:
- для пуска рабочего раствора пенообразователя на направление пожаротушения;
- для формирования электрического импульса при открытии базового клапана;
- для контроля давления до и после себя.
Узел управления оснащен:
- пилотным соленоидным клапаном, 24 В;
- устройством ручного локального пуска;
- гидравлической сиреной, срабатывающей при пуске узла управления;
- манометрами для измерения давления до и после сигнального клапана, а также в линии заправки управляющей полости (камеры управления) базового клапана;
- сигнализатором давления на выходе базового клапана;
- дренажами раствора пенообразователя на выходе базового клапана и из управляющей полости (камеры управления) базового клапана.
Затворы дисковые с электроприводом [поз. ЗП3, ЗП6] предназначены для отсечения основной и резервной линий раствора пенообразователя от коллектора трубопровода раствора пенообразователя. Оснащены блоком концевых выключателей, электроприводом постоянного тока на напряжение 24 В и дублирующим ручным приводом.
Затворы дисковые с ручным управлением [поз. ЗП1, ЗП4] предназначены для отсечения основной и резервной линий трубопровода воды от входов. Затворы дисковые с ручным управлением [поз. ЗП7…ЗП13] предназначены для разделения коллектора трубопровода раствора пенообразователя на ремонтные участки. Оснащены блоком концевых выключателей.
Клапаны обратные [поз. КО1, КО2] предназначены для предотвращения попадания раствора пенообразователя (или концентата пенообразователя) в трубопроводы воды основной и резервной линии.
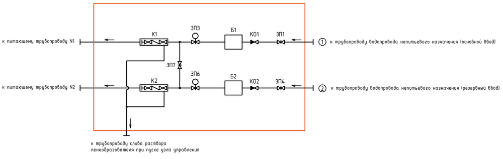
ПРИНЦИП ДЕЙСТВИЯ
Устройством узла приготовления раствора пенообразователя предусматривается:
- подача рабочего раствора пенообразователя только по одному или нескольким направлениям пожаротушения;
- подача воды только на один из входов (основной или резервный);
- ручной локальный пуск устройством ручного пуска, входящим в состав узла управления;
- электрический удаленный пуск по импульсу 24 В, подаваемого на соленоидный клапан узла управления.
Поток воды поступает на вход 1 или на вход 2 (см. схемы структурные гидравлические). Далее через затвор [поз.ЗП1,ЗП4] и обратный клапан [поз.КО1,КО2] вода подается в дозирующее устройство бака-дозатора [поз.Б1,Б2], где осуществляется дозирование пенообразователя в заданной пропорции. Полученный таким образом водный раствор пенообразователя через затвор с электроприводом [поз.ЗП3,ЗП6] поступает в коллектор трубопровода раствора пенообразователя [поз.5] и через дисковые затворы с ручным управлением [поз.ЗП7…ЗП13] и сработавший узел управления подается на направление пожаротушения.
Перед пуском:
- Должны быть открыты все затворы с ручным управлением [поз. ЗП1, ЗП4, ЗП7…ЗП13].
- Должен быть открыт один из затворов с электроприводом [поз. ЗП3 или ЗП6] в зависимости от того, с какого входа (1 или 2) предусматривается подача воды.
- Узлы управления должны быть подготовлены к пуску в соответствии с документацией предприятияизготовителя.
Подача приготовленного рабочего раствора пенообразователя начнется через сработавший узел управления на соответствующее направление пожаротушения.
ТРЕБОВАНИЯ К РАЗМЕЩЕНИЮ И УСЛОВИЯ ЭКСПЛУАТАЦИИ
Эксплуатация оборудования, входящего в состав узла, предусматривается при следующих условиях:
- Температура окружающей среды от +5 °С до +35 °С, относительная влажность воздуха не более 80% при +25 °С, освещенность не менее 100 лк. Температура воды на входах 1 и 2 от +5 °С до +35 °С.
- Оборудование должно размещаться вне взрывопожароопасных зон и вне зон, в которых возможно образование агрессивных сред.
- Вода, подаваемая на входы 1 и 2, должна соответствовать требованиям, которые предъявляют пенообразователи, предназначенные для заправки баков-дозаторов [поз. Б1, Б2].
- Для обеспечения нормальных условий эксплуатации оборудования, входящего в состав узла, вода не должна иметь механических примесей с геометрическими размерами более 0,5 мм.
СТАНДАРТЫ
Оборудование, изделия и материалы, входящие в состав узла приготовления раствора пенообразователя, имеют соответствующие сертификаты и разрешения на применение, подтверждающие их соответствие требованиям действующих нормативных документов на территории РФ.

Выборка из модельного ряда узлов ПРП представлена в таблице (данные об отличных от указанных в таблице конфигурациях УПРП предоставляются по запросу):












